Ricerca rapida
-
-
CERCA

Sedegliano (Grions)
EDIFICIO DA RISTRUTTURARE A SEDEGLIANO ( GRIONS )

Casa singola

SEDEGLIANO (Grions), a circa 10 minuti da Codroipo.

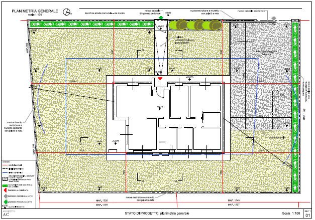
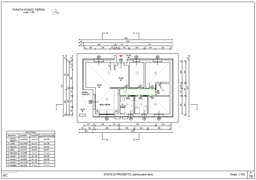
Edificio della superficie commerciale di 474 mq che si eleva su due piani, ( 237 mq ciascuno ) e con una cubatura pari a 2.421 metri cubi. Il terreno di pertinenza circostante ha una superficie di 1.200 mq.

L'immobile e' in stato di abbandono e necessita di completa ristrutturazione.

E' gia' stato depositato ed approvato dal Comune di Sedegliano il Permesso di Costruire per la demolizione dell'edificio con successiva costruzione di villa unifamiliare. Il progetto ovviamente puo' essere modificato tramite variante, e i lavori possono iniziare immediatamente. All'acquirente verrà consegnato anche il progetto con tutti i suoi allegati, documentazione dal valore di oltre euro 15.000.

Alternativamente l'attuale edificio puo' essere conservato e con opportuna ristrutturazione puo' venire trasformato in un condominio. A tal proposito nel 2006, al precedente proprietario ( impresa edile ), era stato approvato dal Comune il progetto di un condominio da 8 appartamenti. Progetto che poi non è mai stato realizzato.

Caratteristiche

Codice
180 GRIONS - SEDEGLIANO
Prezzo
50.000,00 EUR
Mq
474
Classe
NA
Locali
15
Stato Immobile
Da Ristrutturare

MAPPA

via loreto 11, Sedegliano (UD)
Richiedi informazioni
Codice:
Nominativo: *
Telefono: *
Email: *
Dettagli richiesta: *
Autorizzo il trattamento dei miei dati personali in base Regolamento UE n. 679/2016 - Privacy Policy
Invia
Cookie preference